KLIMAT AKUSTYCZNY NA TERENACH REKREACYJNYCH NA PRZYKŁADZIE BADAŃ PROWADZONYCH W PARKACH WROCŁAWSKICH
Już w czasach rzymskich zaczęto stosować pewne formy zieleni miejskiej pierwsze drzewa sadzone wzdłuż drogi. Początki publicznego użytkowania zieleni (pierwsze parki miejskie), sięgają natomiast XVIII wieku. Ich zadaniem zawsze było zapewnienie odwiedzającym je ludziom miejsca do spotkań towarzyskich, chwili spokoju, ciszy i wytchnienia. Można zatem stwierdzić, że klimat akustyczny jest jednym z elementó
w decydujących o walorach terenów zieleni miejskiej jako miejsca wypoczynku i rekreacji. Tereny zielone spełniają także inne funkcje np. pełnią rolę płuc miasta, wpływają na jego klimat przyrodniczy, a także poprawiają gospodarkę wodną. Dziś trudno sobie wyobrazić, aby jakakolwiek aglomeracja miejska nie miała choćby jednego parku.Niestety gwałtowny wzrost natężenia ruchu w ostatnich latach spowodował wzrost narażenia na hałas terenów przylegających do arterii komunikacyjnych, w tym także terenów zielonych. Przy czym należy zaznaczyć, że hałas komunikacyjny to główne źródło uciążliwości na terenie miejskich aglomeracji. Powstaje zatem pytanie jaki jest obecnie klimat akustyczny na terenach rekreacyjnych? Czy sprzyja on właściwemu wypoczynkowi? Na ile plan
owany rozwój układu komunikacyjnego miasta wpłynie na tenże klimat akustyczny parków?We Wrocławiu tereny zieleni miejskiej przeznaczone na cele wypoczynkowe, zdrowotne i estetyczne zajmują ogółem 5040 ha, co stanowi około 17% powierzchni miasta, z czego parki i skwery zajmują 645 ha [1]. Warto również zaznaczyć, że na tle innych miast Polski wrocławskie tereny zielone odznaczają się dużą różnorodnością gatunków drzew także obcego pochodzenia, oraz dużą liczbą pomników przyrody. Przeciętny park we Wrocławi
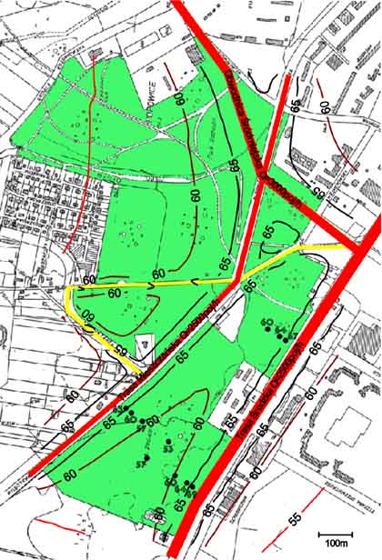
u ma ok. 90-150 gatunków drzew i krzewów, tzn. 3 razy więcej niż średni park w Polsce. Analiza rozmieszczenia parków na terenie miasta pokazuje, że w jego centralnej części znajdują się głównie parki małe, o powierzchni do 10 ha. Są to m.in. parki: Nowowiejski, St. Staszica, Promenada Staromiejska oraz Ogród Botaniczny. Parki te są otoczone przeważnie ze wszystkich stron ulicami o znacznym natężeniu ruchu kołowego i tramwajowego. Parki duże, o powierzchni powyżej 20 ha, takie jak: Szczytnicki, Zachodni czy Południowy zlokalizowane są poza centrum miasta, za to w pobliżu dróg wylotowych z Wrocławia o natężeniu ruchu powyżej 1000 poj/h (Rys.1). Taka lokalizacja powoduje, że tereny parków narażone są na negatywne oddziaływanie hałasu komunikacyjnego, który ze względu na niekorzystny układ dróg i mostów we Wrocławiu, kształtowany jest nie tylko przez ruch lokalny ale także przez ruch tranzytowy. Szacuje się, że ruch przelotowy stanowi około 20% całego ruchu komunikacyjnego w mieście. Należy zaznaczyć, że zasięg oddziaływania hałasu komunikacyjnego zależy głównie od natężenia ruchu (Q [poj/h]), prędkości jazdy (V [km/h]) oraz procentowego udziału pojazdów klasy ciężkiej w potoku ruchu (pc [%]).
Rys.1. Schemat usytuowania terenów zielonych (lasy, parki, skwery) we Wrocławiu wraz z zaznaczonymi analizowanymi parkami
We Wrocławiu planowana jest dalsza rozbudowa sieci komunikacyjnej. Z analizy Studium uwarunkowań i kierunków zagospodarowania przestrzennego Wrocławia wynika, że główne kierunki rozwoju układu komunikacyjnego zakładają przede wszystkim dokończenie budowy Obwodnicy Staromiejskiej i Śródmiejskiej oraz budowę kilku nowych ciągów komunikacyjnych mających na celu polepszenie komunikacji pomiędzy różnymi częściami miasta. Zakłada się również budowę tzw. Aut
ostradowej Obwodnicy Wrocławia stanowiącej łącznik płatnej autostrady A4. Przebieg tych tras prowadzić będzie między innymi przez tereny lub w pobliżu parków: Zachodniego, Szczytnickiego czy St. Staszica. Przewidywana jest także zmiana kategorii na wyższą niektórych ulic w celu zwiększenia ich przepustowości. Przewiduje się, że natężenie ruchu na obwodnicach będzie rzędu 2000 3000 poj/h w ciągu dnia. Wiele tras, które obecnie obciążone są niewielką ilością pojazdów rzędu 100 poj/h, w przyszłości staną się głównym źródłem hałasu na omawianym terenie. Rys. 2 pokazuje, że wypadkowy poziom dźwięku jest proporcjonalny do logarytmu z natężenia ruchu
Rys.2. Zależność poziomu hałasu drogowego (L
Aeq) od natężenia ruchu QPodstawowym problemem przy tego typie ocenie jest ustalenie kryterium oc
eny. Niestety walka z hałasem jako aktualnie dominującej szkodliwości biofizycznej wykazuje u nas zarówno w dziedzinie administracyjno prawnej, inżynieryjno technicznej, ekonomicznej jak i wychowawczo oświatowej bardzo poważne zaniedbania. W myśl obowiązującego obecnie w Polsce rozporządzenia MOŚZNiL z dnia 13 maja 1998 roku, określającego dopuszczalne wartości poziomów hałasu w środowisku [Dz. U. z 1998r nr 66 poz. 436] parki w miastach nie są objęte specjalną ochroną przed hałasem. Nie mniej ustawa o ochronie i kształtowaniu środowiska [Dz. U. z 1994r nr 49] w rozdziale 6 mówi o ochronie zieleni w miastach i wsiach. Art.42 ust.2 tej ustawy brzmi: W studium uwarunkowań i kierunków zagospodarowania przestrzennego gminy oraz w miejscowym planie zagospodarowania przestrzennego uwzględnia się obowiązek tworzenia i ochrony terenów zieleni miejskiej. Natomiast art.43 ust.1 mówi: Układ terenów zieleni miejskiej powinien zapewniać właściwe warunki zdrowotne, klimatyczne i wypoczynkowe, niezbędne do zaspokojenia potrzeb mieszkańców, związanych z zamieszkaniem, pracą i wypoczynkiem. Aeq = 55 dB. Jest to także wartość przyjęta przez WHO jako wartość przewodnia średnich poziomów hałasu zewnętrznego w ciągu dnia (WHO 1996) [3].Tabela 1. Skala subiektywnej uciążliwości hałasu komunikacyjnego [2]
|
uciążliwość |
LAeq [dB] |
|
mała |
< 52 |
|
średnia |
52...62 |
|
duża |
63...70 |
|
bardzo duża |
> 70 |
Mówiąc o wartościach dopuszczalnych hałasu na terenach rekreacyjnych należy również wspomnieć o tzw. subiektywnej wrażliwości człowieka na hałas.
Czynnikiem, który w sposób istotny wpływa na relacje między warunkami akustycznymi a człowiekiem jest tzw. subiektywna wrażliwość na hałas. Dotyczy ona zarówno fizjologicznych predyspozycji odbioru dźwięku, reakcji emocjonalnych jak i subiektywnych odczuć. Odczuwanie dźwięku jako hałasu zależy więc zarówno od cech indywidualnych każdego człowieka jak też od cech fizycznych dźwięku. Wśród ludzi stwierdzamy ogromne różnice indywidualne stąd ocena hałasu zależy od wieku, wrażliwości, stanu zdrowia, odporności nerwowo-psychicznej i chwilowego nastroju człowieka. Subiektywne odczuwanie hałasu przejawia się m. in. tym, że hałas wytwarzany przez daną osobę może nie być dla niej dokuczliwy, natomiast dla osoby postronnej może być męczący lub wręcz nieznośny. Dokuczliwość hałasu dodatkowo potęguje się wówczas, jeśli wystąpi on niespodziewanie lub nie można określić kierunku, z którego się on pojawi [4]. Podstawowymi cechami fizycznymi dźwięku wpływającymi na jego odczuwanie są: poziom, częstość występowania, czas trwania oraz charakterystyka widmowa.
Wpływ hałasu na zdrowie i samopoczucie mieszkańców
Ze względu na różne oddziaływanie hałasu na organizm, a tym samym różną szkodliwość dla zdrowia, hałasy słyszalne można podzielić w zależności od ich poziomu na pięć następujących grup [4]:
Hałas przyspieszając i pogłębiając zmęczenie zmniejsza uwagę, tłumi słyszalność mowy i ostrzegawczych sygnałów akustycznych, przytępia ostrość widzenia, bystrość obserwacji co wpływa łącznie na opóźnienie przebiegu reakcji obronnych zwiększając znacznie możliwość nieszczęśliwych wypadków.
Na podstawie badań radzieckich przeprowadzonych na 687 mieszkańcach domów położonych przy hałaśliwych ulicach stwierdzono, że hałasy wywołane ruchem komunikacyjnym są jedną z przyczyn powodujących liczne choroby układu nerwowego, serca, układu pokarmowego i żołądka [4].
Badania hałasu drogowego w Niemczech wykazały wpływ hałasu o poziomie 65 dB na skurczowe ciśnienie krwi, czas krzepnięcia krwi oraz obniżenie kortyzolu i liczby trombocytów [5]. Podobne badania prowadzone w Anglii sugerują, że ekspozycja na hałas uliczny o poziomie 66 ¸ 70 dB może powodować niewielki wzrost relatywnego ryzyka niedokrwiennej choroby serca. Zbieżne wyniki zaobserwowano również w Szwecji analizując przypadki zawałów mięśnia sercowego u mężczyzn.
Wyniki badań prowadzonych przez PZH w Warszawie oraz na zlecenie GIOŚ w Lublinie pozwalają wyciągnąć podobne wnioski. Zaobserwowano zmiany w zakresie układu krążenia, pokarmowego i mięśniowo stawowego, a także zakłócenia równowagi emocjonalnej u osób zamieszkałych w rejonie hałasu powyżej 65 dB. Wyniki tych badań przedstawia rys.2. [6]
Rys.3. Ryzyko względne pogorszenia stanu zdrowia ocenianego przez mieszkańców z rejonu o wyższym poziomie hałasu w odniesieniu do osób zamieszkałych w korzystnych warunkach akustycznych: 1- szybkie męczenie się, 2 bóle i kołatanie serca, 3- duszność, 4 zawroty głowy, 6 uderzenia krwi do głowy, 7 bóle i łzawienie oczu, 8 marznięcie kończyn, 9 niska samoocena zdrowia
Wyniki analizy klimatu akustycznego na terenach rekreacyjnych
Aby ocenić stopień i skalę zagrożenia hałasem komunikacyjnym terenów rekreacyjnych dokonano analizy rozkładu poziomu hałasu na terenach 9 wybranych parków wrocławskich. Były to 4 parki duże Szczytnicki, Południowy, Wschodni, Zachodni, oraz 5 parków małych Nowowiejski, Staszica, Słowackiego, Kopernika i Ogród Botaniczny. Ocenę klimatu akustycznego oparto na wynikach pomiarów z lat 1990...1999 oraz na wynikach analiz prognostycznych dla pla
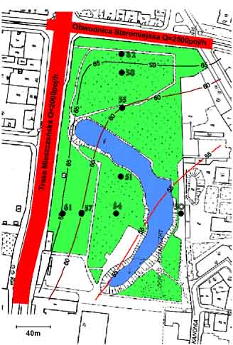
nowanego rozwoju układu komunikacyjnego. Ze względu na swoją specyfikę oraz szczególne walory przyrodnicze dwa z pośród wrocławskich parków zasługują na przedstawienie ich szczegółowej analizy.Wrocławski Ogród Botaniczny
Źródłem hałasu w Ogrodzie jest hałas pochodzący od graniczących z nim dwóch ulic o bardzo dużym natężeniu ruchu: ul. Sienkiewicza, która ma stanowić w przyszłości fragment Trasy Mieszczańskiej i ul. Wyszyńskiego, którędy planowany jest przebieg Obwodnicy Staromiejskiej. Od tej strony, teren Ogrodu Botanicznego otoczony jest także murowanym parkanem o wysokości około 2,5 metra. W porze dziennej, przy natężeniu ruchu Q = 1200...1700 poj/h, hałas występujący na granicy Ogrodu Botanicznego kształtuje się na poziomie LAeq = 72...75 dB, a w odległości 10...15 m od ogrodzenia wynosi LAeq = 60...65 dB. Jest to hałas zaliczany do kategorii hałasów o dużej i bardzo dużej uciążliwości. W tabeli 2 zestawiono zasięgi oddziaływania hałasu o poziomie LAeq = 55 dB oszacowane dla różnych warunków ruchu: dla godzin szczytu komunikacyjnego lub średnich warunków występujących w okresie 8 lub 16 godzin w porze dziennej. Te różnice w sposobie oceny w różnych latach wynikają ze zmian w obowiązujących regulacjach prawnych. W 1990 r. pomiary zostały wykonane w okresie zwiększonego ruchu pojazdów na ul. Wyszyńskiego w związku z remontem Mostu Grunwaldzkiego.
Tabela 2. Ogród Botaniczny - zasięg hałasu o poziomie L
Aeq ł 55 dB|
Warunki oceny |
ulica |
Q |
pc |
d |
|
|
[poj/h] |
[%] |
[m] |
|||
|
1 |
Godziny szczytu - 1990 r. [7] |
|
1200 2700 |
14 16 |
70...80 100...120 |
|
2 |
Uśrednienie za okres 8 godz. - 1997 r. [8] |
|
800 1100 |
12 10 |
» 40 » 55 |
|
3 |
Uśrednienie za okres 16 godz. - 1999 r. [9] |
|
1700 1800 |
8 5 |
» 45 » 75 |
|
4 |
Prognoza za okres 16 godz. - 1999 r. [10] |
|
2000 2500 |
10 10 |
» 120 » 200 |
Na rysunku 3 przedstawiono mapę akustyczną Ogrodu Botanicznego. Zaznaczone izolinie odnoszą się do stanu perspektywicznego, natomiast punkty pomiarowe obrazują stan obecny uśredniony dla 16 godzin pory dziennej. Z analizy tego rysunku wynika, że obecnie zasięg oddziaływania hałasu o poziomie L
Aeq > 55 dB jest rzędu 45...75 m od krawędzi jezdni, jednak ciągle na terenie Ogrodu Botanicznego znajduje się dość znaczna strefa o poziomie hałasu nie przekraczającym 55 dB. Natomiast realizacja planu rozbudowy układu komunikacyjnego spowoduje, że tylko na 17 % powierzchni poziom hałasu będzie niższy od 55 dB.
Rys.4. Mapa akustyczna Ogrodu Botanicznego (izolinie odnoszą się do stanu perspektywicznego, natomiast zaznaczone punkty obrazują obecny stan klimatu akustycznego)
Park Szczytnicki
(100 ha) jest największym i najstarszym parkiem we Wrocławiu. Położony jest we wschodniej części miasta na tzw. Wielkiej Wyspie, na której utworzony został Szczytnicki Zespół Przyrodniczo-Krajobrazowy. Został on wpisany do rejestru zabytków jako przykład założenia parkowego z XVII/XIX w. Park ten jest bogaty w pomniki przyrody, w cenne florystycznie drzewa okazowe oraz w wiele gatunków ptaków. Jedną z atrakcji jest zlokalizowany po północnej stronie Pergoli Ogród Japoński, w którym można podziwiać japońskie budowle ogrodowe takie jak: pawilony, herbaciarnie, mostki, bramy, kaskady wodne, latarnie i misy ogrodowe oraz kompozycje roślin z Dalekiego Wschodu [11].Obecnie głównym źródłem hałasu na terenie parku jest ruch drogowy i tramwajowy na ul. Mickiewicza, która przecina obszar parku oraz na ul. Paderewskiego i ul. Różyckiego, które przebiegają na obrzeżach parku.
Rejon ul. Mickiewicz
a. Obecnie tylko wąska strefa przyległa do tej ulicy (40...60m) jest zdegradowana ze względu na hałas. W porze dziennej, przy średnim natężeniu ruchu rzędu Q16 = 1000 poj/h, hałas występujący w odległości 10 m od krawędzi jezdni kształtuje się na poziomie LAeq = 63...66 dB. Jest to hałas zaliczany do kategorii hałasów o dużej uciążliwości (skalę subiektywnej uciążliwości hałasu komunikacyjnego przedstawiono w poprzednim artykule).Rejon ul. Paderewskiego i ul. Różyckiego. Średnie natężenie ruchu na tych uli
cach wynosi Q16 = 500 poj/h. Równolegle do obu tych jezdni na skraju parku przebiega torowisko tramwajowe. Hałas występujący w odległości 10 m od krawędzi tych jezdni kształtuje się na poziomie LAeq = 60...63 dB.Na podstawie analizy planu rozwoju układu komunikacyjnego Wrocławia stwierdzono, że ul. Mickiewicza ma stanowić fragment tzw. Trasy Olimpijskiej, a ulicami Paderewskiego i 9 Maja lub wariantowo ulicą Wróblewskiego ma przebiegać Obwodnica Śródmiejska. Należy więc oczekiwać wzrostu natężenia ruchu n
a ulicach przebiegających w rejonie Parku Szczytnickiego. Przy dwukrotnym wzroście natężenia ruchu poziom hałasu wzrasta o 3 dB. W przypadku poprowadzenia obwodnicy wzdłuż ul. Paderewskiego może nastąpić 4...6 krotny wzrost natężenia ruchu co odpowiada wzrostowi poziomu hałasu o 6...8 dB.W tabeli 1 zestawiono zasięgi (d) oddziaływania hałasu drogowego o poziomie L
A = 55 dB od poszczególnych ulic przebiegających w rejonie parku oraz średnie warunki ruchu, dla których wyznaczono te zasięgi, przy czym: Q natężenie ruchu, pc procent pojazdów klasy ciężkiej. Pomiary z 1990 r odnoszą się do godzin szczytu komunikacyjnego, natomiast z 1999 r. oraz prognoza do wartości średniodobowych.Dane przedstawione w tabeli 3 pozwalają na ocenę stopnia skażenia hałasem komunikacyjnym wynikającym nie tylko ze zmian warunków ruchu, ale także ze zmian regulacji prawnych i związanych z tym sposobów oceny klimatu akustycznego na tle ostatnich 10 lat [12,13].
Tabela 3. Park Szczytnicki - zasięg hałasu o poziomie L
Aeq ł;dB|
Warunki oceny |
Ulica |
Q |
pc |
d |
|
|
[poj/h] |
[%] |
[m] |
|||
|
1 |
Godziny szczytu - 1990 r. [3] |
|
400 500 500 - 700 |
17 14 10 - 11 |
50...100 » 50 40...50 - » 120 |
|
2 |
Uśrednienie za okres 16 godz. - 1999 r. [4] |
|
900 700 600 50 1500 |
8 2 5 0 3 |
40...65 » 40 » 30 - - |
|
3 |
Prognoza za okres 16 godz. [5] |
|
1500 3000 500 3000 2000 |
10 15 5 15 5 |
» 110 » 280 » 30 » 300 » 120 |
Na ry
sunku 4 przedstawiono mapę akustyczną Parku Szczytnickiego, na której wykreślone zostały zasięgi hałasu o poziomie LAeq = 65, 60 i 55 dB dla stanu perspektywicznego oraz podano wartości poziomu hałasu (LAeq16) dla stanu obecnego. Jak można zauważyć obecnie hałas o poziomie przekraczający 55 dB występuje w odległości około 30...60 m metrów od rozważanych ulic, a więc większa część parku znajduje się w strefie o poziomie Ł 55 dB czyli małej lub średniej uciążliwości. Jednakże realizacja planu rozbudowy układu komunikacyjnego, a zwłaszcza poprowadzenie Obwodnicy Śródmiejskiej ulicami 9 Maja i Paderewskiego spowoduje, że zasięg oddziaływania hałasu o dużej i bardzo dużej uciążliwości będzie rzędu 250...300 m, a już tylko na 56 % powierzchni parku poziom hałasu będzie niższy od 55 dB.
Rys.5. Mapa akustyczna Parku Szczytnickiego; izolinie - zasięg hałasu dla stanu perspektywicznego, punkty poziomy hałasu dla stanu obecnego
Pozostałe analizowane parki
Klimat akustyczny parku im. St. Staszica na większości jego obszaru kształtowany jest obecnie przez hałas pochodzący od ulicy o natężeniu ruchu rzędu Q16 = 2000 poj/h. Poziom dźwięku na terenie parku od strony tej ulicy przekracza 65 dB. Nie stwierdzono natomiast miejsc, gdzie poziom dźwięku byłby niższy niż 55 dB. W przypadku realizacji Obwodnicy Staromiejskiej nastąpi znaczne pogorszenie klimatu akustycznego na terenie całego parku. Obwodnica ta jako główne źródło hałasu na tym terenie spowoduje, że prawie cały obszar parku (93%) narażony będzie wówczas na hałas o poziomie przekraczającym 60 dB.
Rys.6. Mapa akustyczna Parku im. St.Staszica
Podobnie klimat akustyczny parku Nowowiejskiego kształtowany jest przez hałas pochodzący od ulic o natężeniu rzędu 500...1500 poj/h. Na jego obszarze dopiero w odległości powyżej 60 m od ulicy Wyszyńskiego, poziom dźwięku spada poniżej wartości 60 dB, natomiast obszar, gdzie poziom hałasu jest mniejszy od 55 dB, jest bardzo niewielki rzędu kilku procent. W związku z planowaną rozbudową układu komunikacyjnego teren o poziome p
oniżej 55 dB zniknie z obszaru parku. Zwiększy się także znacząco zasięg oddziaływania hałasu o poziomie ponad 65 dB i obejmie on blisko 24 % powierzchni.Również na terenie parku im. J. Słowackiego warunki akustyczne generowane są przez otaczające go ulice. Największe skażenie hałasem występuje w rejonie skrzyżowania ulic Purkyniego i Wyszyńskiego. Poziom hałasu w tym fragmencie parku przekracza 60 dB, natomiast w pozostałej części badanego obszaru oscyluje wo
kół wartości 55...60 dB. Strefy najcichsze znajdują się w bliskim sąsiedztwie budynku Panoramy Racławickiej.Atmosferę akustyczną w parku Staromiejskim im. M. Kopernika kształtuje obecnie hałas od ulicy Teatralnej i Podwale. Poziom hałasu w większości badanego obszaru zawiera się w przedziale 55...60 dB. Jedynie w środkowej części parku można znaleźć miejsca o poziomie poniżej tego zakresu.
Obecnie najmniej narażony na hałas jest park Wschodni. Cały obszar tego parku znajduje się w strefie o małej i średniej uciążliwości. Jest bowiem otoczony korytami i odnogami rzek Odry i Oławy, a w pobliżu przebiega tylko jedna arteria komunikacyjna. Hałas jaki dociera do obsz
aru parku od strony tej ulicy nie przekracza 60 dB. Jak wynika z badań symulacyjnych, przewidywany w przyszłości wzrost natężenia ruchu na ulicy Krakowskiej spowoduje, że dotychczasowe krzywe jednakowego poziomu dźwięku zostaną przesunięte dalej w głąb parku, a zasięg oddziaływania hałasu o poziomie ł 55 dB wyniesie około 150 m od krawędzi jezdni. Jednak mimo to aż 91 % powierzchni nadal pozostanie w strefie, w której poziom hałasu jest mniejszy od 55 dB.Najmniejsz
a strefa ciszy spośród badanych dużych parków znajduje się w parku Zachodnim. Przyczyną tego stanu rzeczy jest niewątpliwie otoczenie tego terenu przez 3 główne arterie o dużym natężeniu ruchu zdecydowanie pogarszające jego walory akustyczne. W wyniku znacznego obciążenia ruchem komunikacyjnym tych tras na jego terenie nie występują obszary, na których poziom dźwięku byłby niższy od 50 dB. Na badanym terenie znajduje się obecnie tylko niewielki obszar o poziomie hałasu Ł 55 dB. Jak pokazują wyniki symulacji dalszy wzrost hałasu komunikacyjnego od otaczających ulic spowoduje, że brak będzie obszaru, w którym hałas osiągać będzie wartość niższą od 55 dB, a połowa powierzchni parku znajdzie się w strefie o dużej i bardzo dużej uciążliwości. Decydujący wpływ na ten stan będzie miała projektowana Obwodnica Śródmiejska, która przecinać będzie park na kierunku północ-południe. Tak więc razem z Trasą Mieszczańską podzielą one park na cztery części co oprócz znacznej degradacji pod względem hałasu spowoduje także utratę jego walorów estetycznych.
Rys.7. Mapa akustyczna Parku Zachodniego
Podsumowanie
W tabeli 5 zestawione zostały wyniki prognozy dotyczącej powierzchni parków narażonej na hałas o poziomie większym niż określona wartość graniczna L
A, przy zachowaniu obecnego trendu wzrostu natężenia ruchu i realizacji przewidywanego rozwoju układu komunikacyjnego w mieście. W parkach Nowowiejskim, Kopernika i Staszica na całym terenie wystąpi hałas o poziomie większym od 55 dB, równocześnie na dużym obszarze (34 %) wystąpi hałas o LA > 65 dB, który jest uznawany za hałas o dużej uciążliwości. W parku Słowackiego i Ogrodzie Botanicznym, można będzie znaleźć obszary o poziomie hałasu < 55 dB, jednak stanowić one będą jedynie odpowiednio 32 % i 17 % powierzchni. Wynika to z faktu, iż wokół tych parków zlokalizowanych jest mniej tras komunikacyjnych o dużym natężeniu ruchu. Jedynie w dużych parkach, takich jak Szczytnicki (56 %), Południowy (63 %), usytuowanych poza obszarem śródmiejskim lub z dala od ruchliwych ulic (park Wschodni 91 %), znaleźć można będzie w przyszłości korzystne warunki do wypoczynku LA < 55 dB(A). W parkach tych zdegradowaniu przez hałas ulegnie jedynie strefa przyległa do głównych tras komunikacyjnych. Jednak w parku Zachodnim mimo dużej powierzchni, jedynie na małym obszarze (7 %), w północno - zachodniej części parku można będzie znaleźć miejsca o poziomie LA < 55 dB.Analiza porównawcza wyników pomiarów z badaniami modelowymi wskazuje, że klimat akustyczny w parkach wrocławskich w wyniku rozbudowy układu komunikacyjnego ulegnie stopniowemu pogorszeniu. Zakładany wzrost natężenia ruchu Q
16 na otaczających parki ulicach spowoduje przesunięcie zmierzonych izolinii 55 dB w głąb badanych obszarów. Największe tego typu zmiany można zaobserwować w parku im. St. Staszica i Szczytnickim. Wyznaczone w wyniku pomiarów, strefy ciszy (LAeq Ł 55 dB) mogą w przyszłości zostać ograniczone: Ogród Botaniczny, Park Szczytnicki, Park Wschodni, lub nawet całkowicie wyeliminowane: Park im. St Staszica, Park Zachodni - są to dwa najbardziej narażone rozbudową układu komunikacyjnego miasta parki.Tabela 4. Procentowa wielkość powierzchni parku, narażona na hałas o określonym poziomie - prognoza
|
Park |
Pow. [ha] |
< 55 dB |
55¸ 60 dB |
60¸ 65 dB |
> 65 dB |
|
Zachodni |
75 |
7 % |
43 % |
38 % |
12 % |
|
Ogród Botaniczny |
7 |
17 % |
43 % |
24 % |
16 % |
|
J. Słowackiego |
7 |
32 % |
43 % |
18 % |
7 % |
|
Szczytnicki |
100 |
56 % |
32 % |
12 % |
|
|
Południowy |
24,6 |
63 % |
24 % |
13 % |
|
|
Wschodni |
30 |
91 % |
8 % |
1 % |
|
|
Nowowiejski |
8 |
40 % |
36 % |
24 % |
|
|
St. Staszica |
6 |
7 % |
59 % |
34 % |
|
|
M. Kopernika |
5 |
57 % |
43 % |
Wnioski
Przeprowadzone analizy klimatu akustycznego wykazały, że zarówno tereny małych jak i dużych parków w mieście ze względu na jakość klimatu akustycznego są terenami zdegradowanymi i tylko nieliczne parki miejskie, a w zasadzie tylko niektóre ich fragmenty, zapewniają odpowiednie warunki do rekreacji i wypoczynku, a przewidywane kierunki rozwoju układu komunikacyjnego wpłyną na dalsze pogorszenie tego stanu. Brak w małych parkach miejsc o poziomie niższym niż 55 dB oraz niewielkie obszary o tymże poziomie krytycznym w dużych parkach nie pozwalają uznać je za miejsca, gdzie można wypoczywać nie będąc narażonym na dokuczliwe oddziaływanie hałasu. Obecnie najbardziej narażone na uciążliwy hałas są oczywiście parki małe. Wynika to zarówno z niedużyc
h powierzchni tych parków oraz ich położenia w centralnych częściach miasta przy trasach komunikacyjnych o dużym natężeniu ruchu. Na stan obecny wpływa niekorzystnie również nieodpowiednie zadrzewienie lub nawet jego brak w istotnych fragmentach parku. Gęstość nasadzenia jest w większości przypadkowa i ma znikomy wpływ na ograniczanie docierającego hałasu. Równocześnie należy jeszcze zaznaczyć, iż w tzw. dni wolne poziom hałasu obniża się średnio o około 3...6 dB [10] w stosunku do dni pracy. Powoduje to, że przynajmniej w dni w które najczęściej odwiedzamy tereny wypoczynkowe można będzie zaznać tam chwili spokoju. Warto też wspomnieć, że przeprowadzone analizy klimatu akustycznego zostały wykonane przy przyjęciu zgodnie z normą średnich wartości natężenia Q16 dla 16 godzin dnia. Dlatego dla godzin szczytu komunikacyjnego należy spodziewać się większych wartości poziomu dźwięku.W związku z brakiem ochrony terenów rekreacyjnych w przepisach prawnych oraz środków finansowych nie planuje się także wykonania zabezpieczeń akustycznych wokół tych terenów. Należy jednak pamiętać o zasadzie, iż wzrost hałasu następuje wg zależności 3 dB na podwojenie odległości. Tak więc, obniżenie hałasu o 3 dB powoduje nie tylko spadek wartości hałasu ale także znaczne skrócenie
zasięgu jego oddziaływania. Dla przykładu weźmy ulicę na której w odl. 10m od krawędzi jezdni poziom hałasu wynosi 70 dB. Teoretycznie (bez uwzględnienia wielu czynników związanych z propagacją dźwięku) w odległości 20 m będzie 67 dB następnie 40m - 64 dB itd. aż dla 320 55 dB. Widać stąd , że dopiero w odległości 320 m od ulicy dostaniemy wartość normową, a obniżenie poziomu hałasu zaledwie o 3 dB spowoduje zmniejszenie się tego zasięgu do 160 m! Warto więc stosować środki, które w nawet niewielkim stopniu ograniczają uciążliwość hałasu komunikacyjnego.Literatura